Ing. Arch. Dušan Urbanczyk
Rodinné domy
Byty a bytové domy
Interiéry
Retail
Veřejné stavby
Kontakt
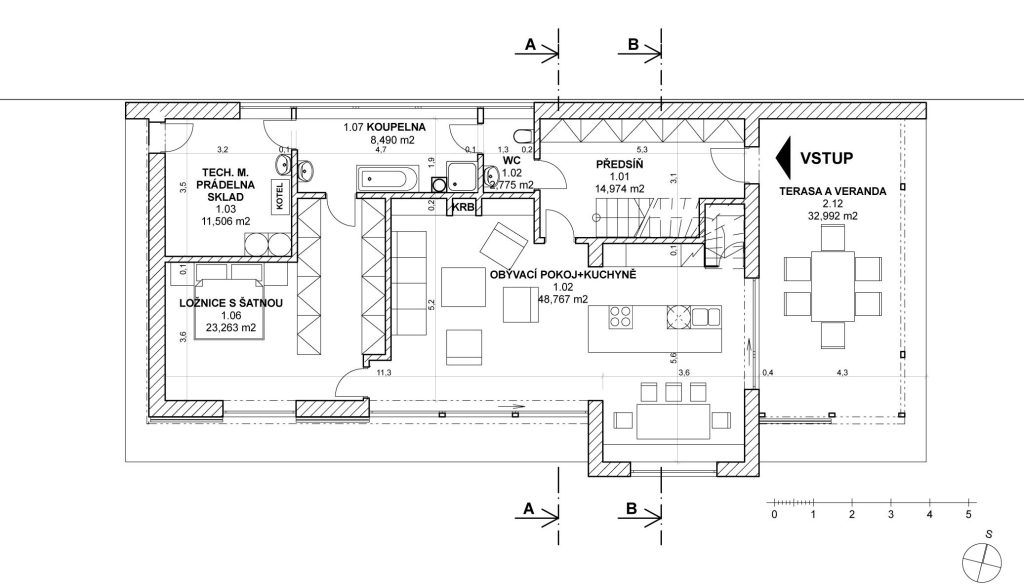
RD Knyk
studie, projekt pro stavební povolení
realizace: 2012 – 2013